TEU Conservices

Technical Specifications

Here at TEU Conservices we offer a variety of proposals on prefabricated units and the ability to adjust them according to your needs. Or we can build them from scratch based on what you ask for.

The technical specifications of our standard prefabricated units are:

  • Frame: Painted galvanized steel (choice of colour).
  • Floor: Marine Plywood covered with PVC.
  • Walls and roof: Polyurethane insulated panels 50mm thick – colour RAL 9002.
  • Aluminum doors (white or brown).
  • Aluminum windows: double glazed with PVC shutters (white or brown) and moskito nets.
  • Bathroom fittings and accessories: Toilet, hand-wash basin, shower, towel holder, mirror and toilet paper holder.

Electrical Installation – according to 16th edition of EAC

    • Fluorescents.
    • Wall lamps (entrance and bathroom).
    • Double sockets.
    • Telephone sockets.
    • Antenna sockets.
    • Provision for A/C.
    • Electrical water heater 30 litres (when there is a shower).
    • Prefabricated Units – Kitchen benches/shelves – upon request.

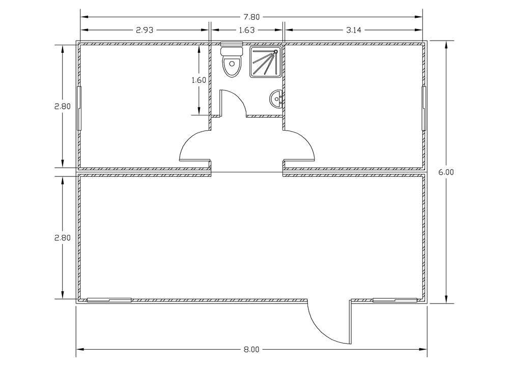
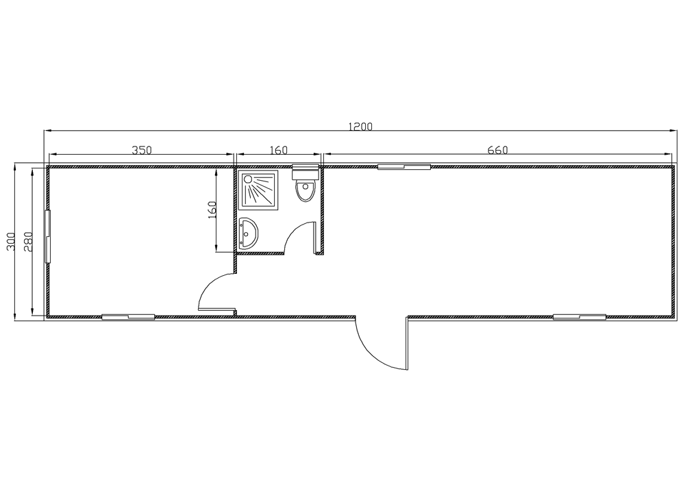
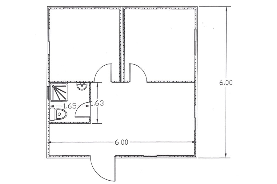
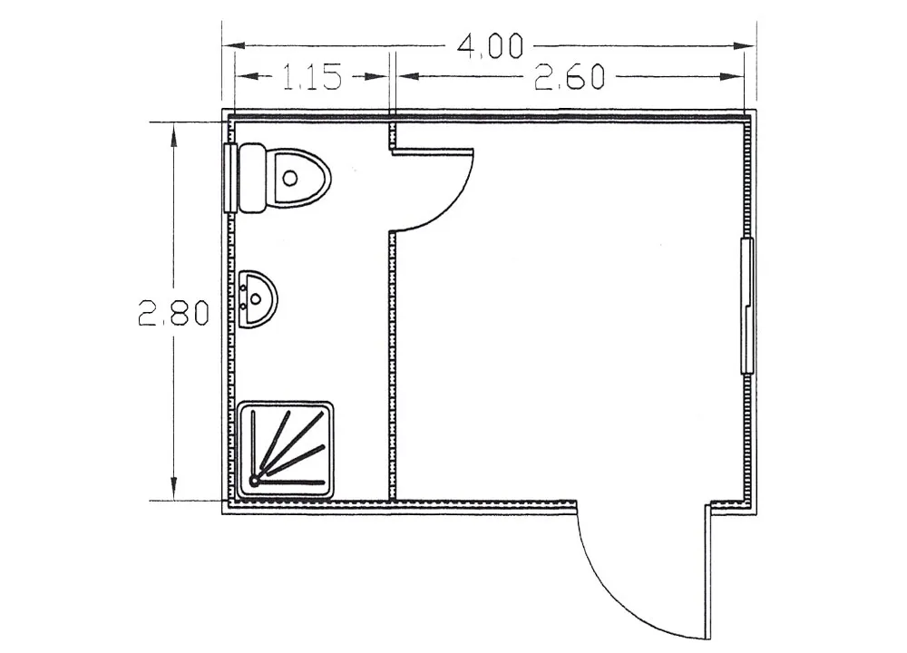
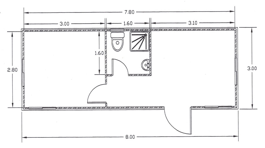
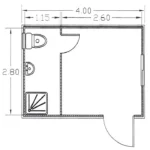
See below for some of our standard drawings of prefabricated units: